NEW PROJECTS

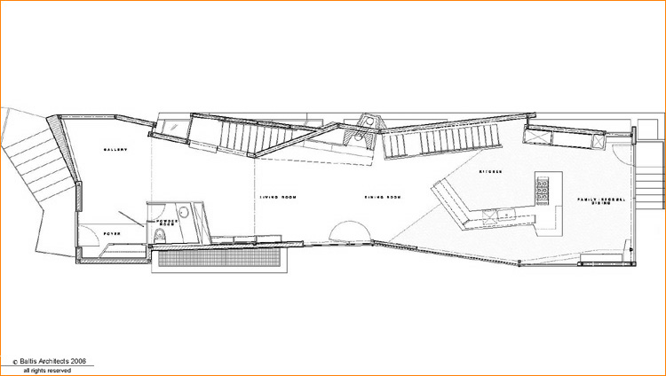
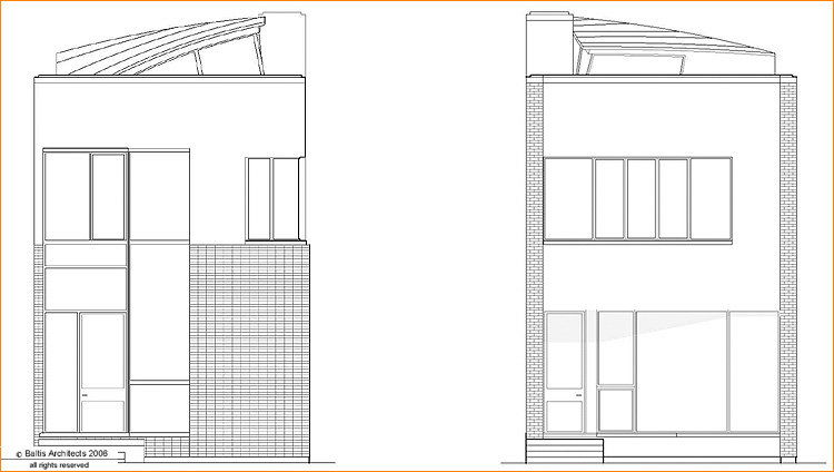
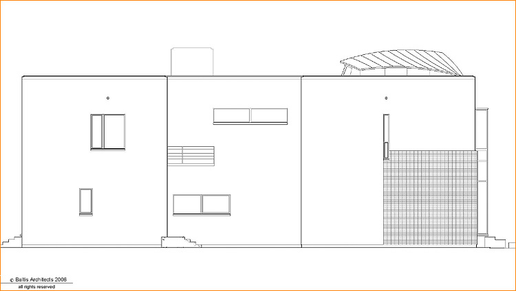
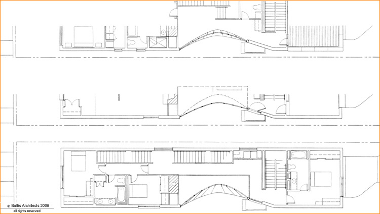
Recent designs for several new residences stand apart from conventional, neo-traditional styles that have ruled Chicago’s recent residential architecture. By-passing predictable models often accepted as the measure of a desireable home, our new projects pursue a dynamic expression of home more closely aligned with current lifestyles – creating a synchronicity of function and exquisite environment.

  6755 S. CRANDON AVE. CHICAGO, IL P. 773.955.0500 F. 773.955.6500 INFO@BALTISARCHITECTS.COM PARTNERS